Įsiminti
Namas pardavimui, Vilnius, Bajorai, Mėtų g. id:1007274 4 kmb.
220 000 €
3 385 €/m²
REKLAMA
Įmoka
829 €/mėn
Paskola 187 000 €
Palūkanos 3.40%
Trukmė 30 metų
Įsiminė
0
Parodymai
Šiandien: 21
Viso: 9529
Peržiūros
Šiandien: 19
Viso: 2424
Objekto informacija
Papildoma įranga
Apsauga
Aprašymas
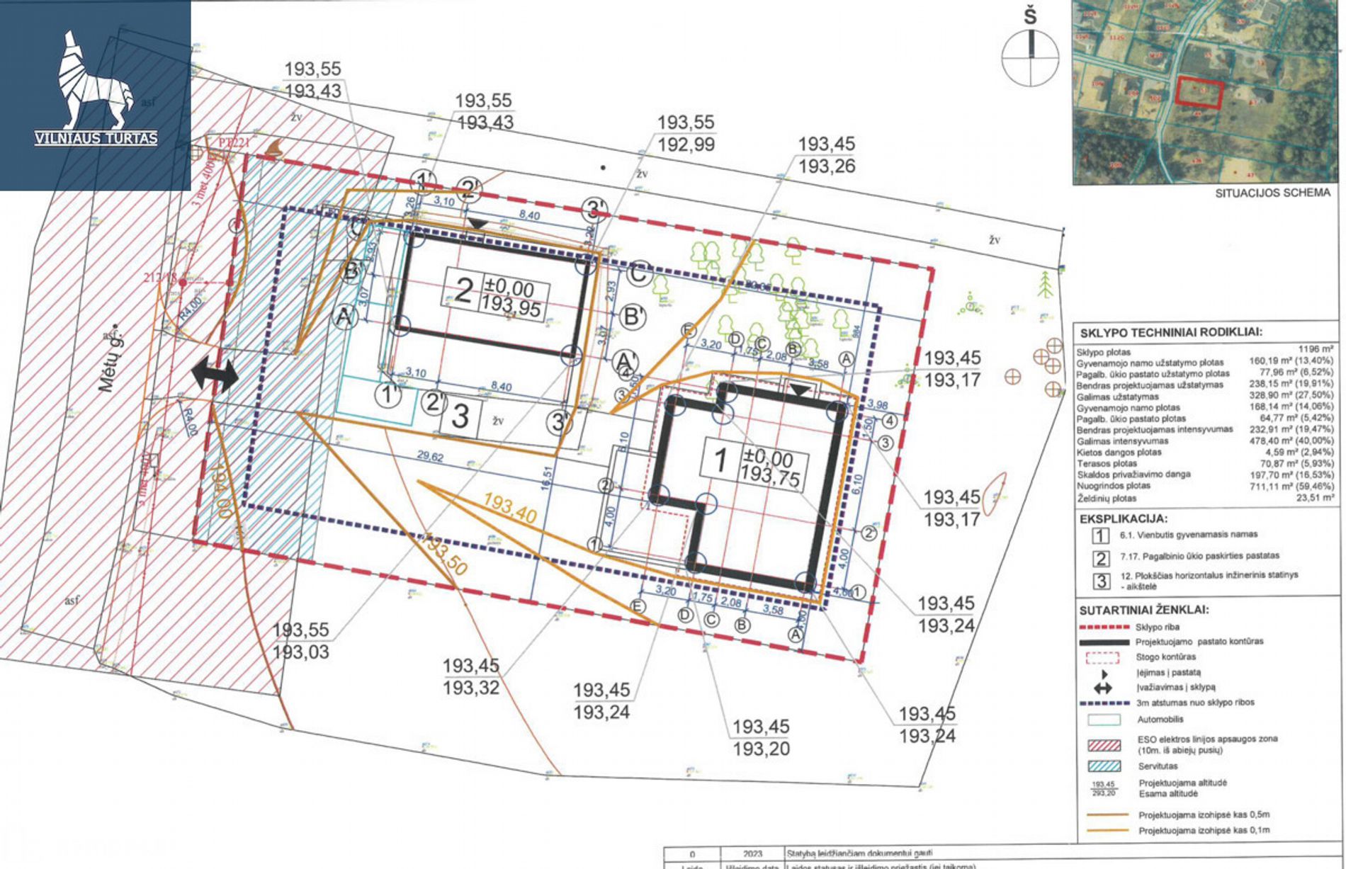
PARDUODAMAS 13 ARŲ SKLYPAS SU MODULINIU NAMU
Vieta - Vilniaus m., Mėtų g.
Asfaltuotas privažiavimas iki pat sklypo, aplinkui nauji namai, pastoviai gyvenantys kaimynai.
Sklype stovi modulinis namas 2023 m.
Sklypo bendras plotas - 13 arų:
11.96 arų - Vienbučių ir dvibučių gyvenamųjų pastatų teritorijos;
1.04 arai - Susisiekimo ir inžinerinių tinklų koridorių teritorijos.
Naudmenų našumo balais: 40.
Matavimų tipas: kadastriniai matavimai.
Elektra: yra.
Dujos: šalia sklypo.
Vanduo: gręžinys.
Kanalizacija: vietinė su BIO valymo įrenginiais.
Internetas: Telia šviesolaidis.
Sklype stovi modulinis namas, kuris registruotas kaip lauko virtuvė su terasa, bet galima užregistruoti kaip nama arba palikti kaip yra ir šalia pastatyti didesnį namą, yra projektas namui, kurio numatomas bendras plotas yra 168 kv.m.
ESAMAS NAMAS:
Miegamieji kambariai - 9.98 kv.m, 9.45 kv.m ir 8.86 kv.m;
Virtuvė su svetainė - 28.78 kv.m;
San.mazgas - 4.76 kv.m;
Katelinė - 3.62 kv.m;
Terasa - 35.25 kv.m.
Langai: 2-jų stiklų.
Namą įmanoma parduoti ir išvežti.
SUSISIEKIMAS:
Asfaltuotas privažiavimas iki pat sklypo.
Iki autobusų st. - 1.50 km (Mėtų st.);
Iki PC Rimi, PC Šilas - 1,50 km;
Iki Ukmergės plento - 2.60 km.
Iki Prekybos centro BIG (Pašilaičiai, Fabijoniškės) - 4 km.
Iki Vilniaus miesto centro - 10 km.
SKLYPO IR NAMO KAINA: 220000 EUR
Skambinkit, rašykit ir suteiksiu jums daugiau informacijos.
[email protected]
Vieta - Vilniaus m., Mėtų g.
Asfaltuotas privažiavimas iki pat sklypo, aplinkui nauji namai, pastoviai gyvenantys kaimynai.
Sklype stovi modulinis namas 2023 m.
Sklypo bendras plotas - 13 arų:
11.96 arų - Vienbučių ir dvibučių gyvenamųjų pastatų teritorijos;
1.04 arai - Susisiekimo ir inžinerinių tinklų koridorių teritorijos.
Naudmenų našumo balais: 40.
Matavimų tipas: kadastriniai matavimai.
Elektra: yra.
Dujos: šalia sklypo.
Vanduo: gręžinys.
Kanalizacija: vietinė su BIO valymo įrenginiais.
Internetas: Telia šviesolaidis.
Sklype stovi modulinis namas, kuris registruotas kaip lauko virtuvė su terasa, bet galima užregistruoti kaip nama arba palikti kaip yra ir šalia pastatyti didesnį namą, yra projektas namui, kurio numatomas bendras plotas yra 168 kv.m.
ESAMAS NAMAS:
Miegamieji kambariai - 9.98 kv.m, 9.45 kv.m ir 8.86 kv.m;
Virtuvė su svetainė - 28.78 kv.m;
San.mazgas - 4.76 kv.m;
Katelinė - 3.62 kv.m;
Terasa - 35.25 kv.m.
Langai: 2-jų stiklų.
Namą įmanoma parduoti ir išvežti.
SUSISIEKIMAS:
Asfaltuotas privažiavimas iki pat sklypo.
Iki autobusų st. - 1.50 km (Mėtų st.);
Iki PC Rimi, PC Šilas - 1,50 km;
Iki Ukmergės plento - 2.60 km.
Iki Prekybos centro BIG (Pašilaičiai, Fabijoniškės) - 4 km.
Iki Vilniaus miesto centro - 10 km.
SKLYPO IR NAMO KAINA: 220000 EUR
Skambinkit, rašykit ir suteiksiu jums daugiau informacijos.
[email protected]

