Įsiminti
Patalpos nuomai, Telšių r. sav., Telšiai, Šiaulių pl. id:1030460
537 € / mėn.
5,02 €/m²
Įsiminė
0
Parodymai
Šiandien: 0
Viso: 837
Peržiūros
Šiandien: 0
Viso: 128
Objekto informacija
Aprašymas
STRATEGIŠKAI GEROJE VIETOJE, ŠALIA MAGISTRALINIO KELIO A11, NUOMOJAMOS PREKYBINĖS BEI SANDĖLIAVIMO PASKIRTIES PATALPOS TELŠIUOSE, ŠIAULIU PL.
Nuomojamos komercinės paskirties patalpos yra pastate šalia magistralinio kelio A11 (Vilnius-Panevėžys-Šiauliai-Telšiai-Plungė-Kretinga-Palanga-Klaipėda). Puikiai nuo kelio matoma vieta. Pastate esančios prekybinės, sandėliavimo bei biurų patalpos sukurs visas sąlygas sėkmingam Jūsų verslui, o puiki pastato strateginė vieta - komercinį patrauklumą - taip reikalingą verslui. Pirmame pastato aukšte įrengta parduotuvė, šalia sandėlys, lauko aikštelėje. Antras aukštas paruoštas remontui. Trečiame aukšte suremontuotos biuro patalpos.Šalia pastato esančioje teritorijoje aptverta saugoma lauko sandėliavimo aikštelė Patogus privažiavimas sunkvežimiams, asfaltuota aikštelė manevrams ir technikos parkavimui. Aplink įsikūrusios ilgametę veiklą vykdančios įmonės.
BENDRA INFORMACIJA :
• Bendras pastato nuomojamas plotas - 1392,16 m²;
• Lauko sandėliavimo aikštelės plotas - 1200 m²;
• Pastato šildymas - vietinis, kietu kuru;
• Oro kondicionieriai;
• Miesto vandentiekis;
• Miesto nuotekų šalinimas;
• Priešgaisrinė ir apsaugos signalizacijos;
• Vaizdo kameros;
• Elektros galia - 25 kw;
APIE PASTATĄ:
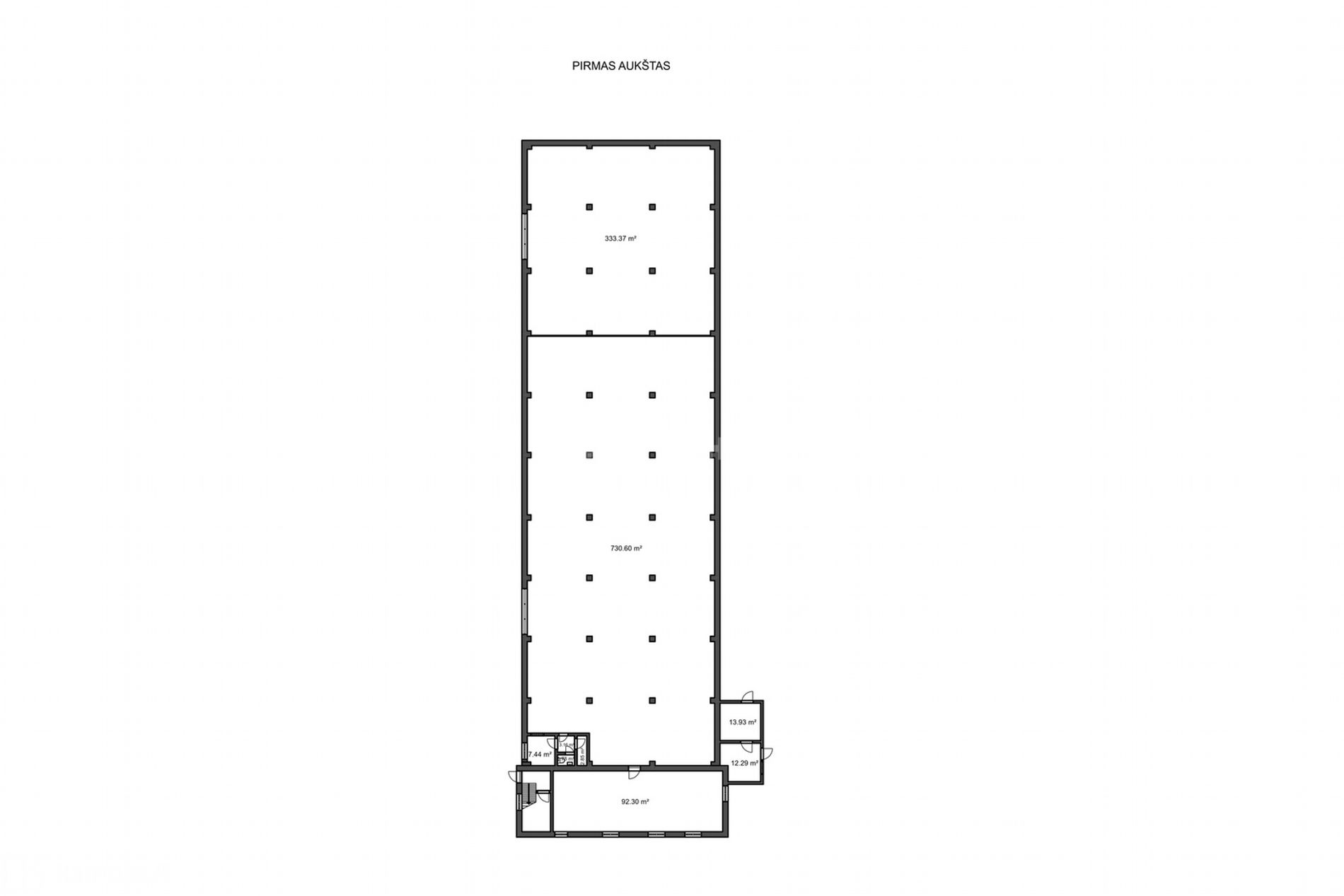
I aukštas
Parduotuvė - 92.30 m²;
Buitinės patalpos - 15.23 m²;
Sandėlys - 730.30 m²;
Sandėlys - 333.37 m²;
II aukštas
Viena ervi patalpa - 96.73 m²;
Galimas įrengimas pagal nuomininko poreikius.
III aukštas
Įvairios konfiguracijos biuro patalpos, virtuvėlė, san. mazgai.
Bendras patalpų plotas - 100.81 m².
Šalia pastato aptverta 1200 m² aikštelė;
Patalpų nuomos kaina: nuo 2 eur iki 5 eur + PVM;
Lauko aikštelės nuomos kaina: 0,50 eur + PVM;
Visas patalpas galima nuomotis visa kartu arba atskirai.
Susisiekite, dėl Jus dominančių klausimų ir suplanuokime Jums tinkantį laiką apžiūrai: +37069599366.
NEMOKAMA KONSULTACIJA NEKILNOJAMOJO TURTO PIRKIMO, PARDAVIMO AR NUOMOS KLAUSIMAIS, KAIP SĖKMINGAI ATLIKTI SANDORĮ.
Rinkos analizė, pardavimo plano sudarymas, potencialių Klientų atranka ir derybiniai įgūdžiai leis mums kartu įgyvendinti saugų ir sėkmingą sandorį. Jeigu Jums to reikia, susitikime ir aptarkime Jūsų lūkesčius ir mano galimybes. Visada profesionaliai ir sąžiningai atstovauju savo Klientus nuo pirmo susitikimo.
Jūsų padėka ir rekomendacijos yra geriausias mano atlygis, todėl leiskite būti Jūsų patarėju ir derybininku visose nekilnojamojo turto įsigijimo, pardavimo procesuose.
-- Objekto nr. Ober-Haus tinklapyje www.ober-haus.lt/OH502776
Nuomojamos komercinės paskirties patalpos yra pastate šalia magistralinio kelio A11 (Vilnius-Panevėžys-Šiauliai-Telšiai-Plungė-Kretinga-Palanga-Klaipėda). Puikiai nuo kelio matoma vieta. Pastate esančios prekybinės, sandėliavimo bei biurų patalpos sukurs visas sąlygas sėkmingam Jūsų verslui, o puiki pastato strateginė vieta - komercinį patrauklumą - taip reikalingą verslui. Pirmame pastato aukšte įrengta parduotuvė, šalia sandėlys, lauko aikštelėje. Antras aukštas paruoštas remontui. Trečiame aukšte suremontuotos biuro patalpos.Šalia pastato esančioje teritorijoje aptverta saugoma lauko sandėliavimo aikštelė Patogus privažiavimas sunkvežimiams, asfaltuota aikštelė manevrams ir technikos parkavimui. Aplink įsikūrusios ilgametę veiklą vykdančios įmonės.
BENDRA INFORMACIJA :
• Bendras pastato nuomojamas plotas - 1392,16 m²;
• Lauko sandėliavimo aikštelės plotas - 1200 m²;
• Pastato šildymas - vietinis, kietu kuru;
• Oro kondicionieriai;
• Miesto vandentiekis;
• Miesto nuotekų šalinimas;
• Priešgaisrinė ir apsaugos signalizacijos;
• Vaizdo kameros;
• Elektros galia - 25 kw;
APIE PASTATĄ:
I aukštas
Parduotuvė - 92.30 m²;
Buitinės patalpos - 15.23 m²;
Sandėlys - 730.30 m²;
Sandėlys - 333.37 m²;
II aukštas
Viena ervi patalpa - 96.73 m²;
Galimas įrengimas pagal nuomininko poreikius.
III aukštas
Įvairios konfiguracijos biuro patalpos, virtuvėlė, san. mazgai.
Bendras patalpų plotas - 100.81 m².
Šalia pastato aptverta 1200 m² aikštelė;
Patalpų nuomos kaina: nuo 2 eur iki 5 eur + PVM;
Lauko aikštelės nuomos kaina: 0,50 eur + PVM;
Visas patalpas galima nuomotis visa kartu arba atskirai.
Susisiekite, dėl Jus dominančių klausimų ir suplanuokime Jums tinkantį laiką apžiūrai: +37069599366.
NEMOKAMA KONSULTACIJA NEKILNOJAMOJO TURTO PIRKIMO, PARDAVIMO AR NUOMOS KLAUSIMAIS, KAIP SĖKMINGAI ATLIKTI SANDORĮ.
Rinkos analizė, pardavimo plano sudarymas, potencialių Klientų atranka ir derybiniai įgūdžiai leis mums kartu įgyvendinti saugų ir sėkmingą sandorį. Jeigu Jums to reikia, susitikime ir aptarkime Jūsų lūkesčius ir mano galimybes. Visada profesionaliai ir sąžiningai atstovauju savo Klientus nuo pirmo susitikimo.
Jūsų padėka ir rekomendacijos yra geriausias mano atlygis, todėl leiskite būti Jūsų patarėju ir derybininku visose nekilnojamojo turto įsigijimo, pardavimo procesuose.
-- Objekto nr. Ober-Haus tinklapyje www.ober-haus.lt/OH502776
Nuotraukos
