Įsiminti
Patalpos nuomai, Vilnius, Pašilaičiai, Vakarinė g. id:1027814
4 780 € / mėn.
10 €/m²
Įsiminė
0
Parodymai
Šiandien: 26
Viso: 3366
Peržiūros
Šiandien: 23
Viso: 1800
Objekto informacija
Papildoma įranga
Aprašymas
NAUJAS PROJEKTAS SANDĖLIAVIMO, BIURO, PREKYBOS PATALPOS VILNIUJE, PAŠILAIČIŲ RAJ.
APIE PATALPAS
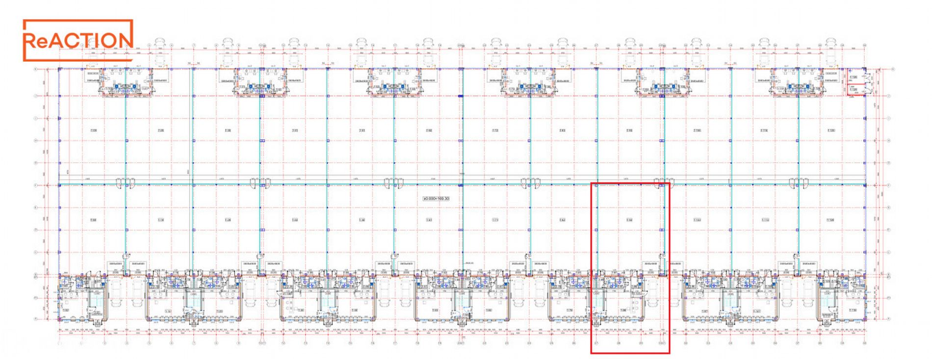
- Bendras objekto plotas: 13500 kv. m.
- Patalpos susideda iš sandėliavimo, ekspozicinės erdvės bei ofiso
- Parkavimas: Yra
- Vitrininiai langai: Taip
- Šildymas: Oras oras.
- Sumontuota sprinklerinė gaisro gesinimo sistema, įrengtas LED apšvietimas, lauko ir vidaus vaizdo kameros
- Švarus sandėliavimo patalpų lubų aukštis - 8.5 m.
- Grindys - Nedulkančios pramoninio betono
- Pastato energetinė klasė: A++
- Šildymas - oras oras
- Iškaba ant fasado: Yra
- Apdaila: Pilnai įrengtos biuro ir prekybos patalpos (be baldų)
KOMERCINĖS SĄLYGOS
- Siūlomas plotas nuomai: 478 kv.m (su matomumu nuo vakarinio aplinkkelio)
- Patalpos susideda iš: sandėliavimo 302 kv.m, prekybinės 60 kv.m, administracinės IIa. 116 kv.m
- Aukštai: 1-2
- Nuomos kaina: 10 Eur/kv. m.
- Netiesioginiai komunaliniai mokesčiai: Triple NET nuomos sutarties struktūra
- Tiesioginiai komunaliniai mokesčiai: Pagal apskaitos prietaisų parodymus
- Depozitas: 3 nuomos mėnesių dydžio
- Įsikėlimo terminas: 2026, QIII
- Nuomos terminas: 5-10 metų
- Indeksacija: Taikoma
LOKACIJA
Strategiškai puiki vieta prekybinių sandėlių projektui. Projektas vystomas šalia vienos srautingiausių Vilniaus gatvių - Vakarinio aplinkkelio sankirtos su Pavilnionių gatve. Puikus matomumas, lengvas privažiavimas tiek lengvaisiais automobiliais, tiek krovininiu transportu. Visuomeninio transporto stotelė už 200 m. Greta - PC Pašilaičiai, aplinkui kuriasi kitos prekybinės įmonės, vykdoma daugybe gyvenamosios statybos projektų.
APIE PATALPAS
- Bendras objekto plotas: 13500 kv. m.
- Patalpos susideda iš sandėliavimo, ekspozicinės erdvės bei ofiso
- Parkavimas: Yra
- Vitrininiai langai: Taip
- Šildymas: Oras oras.
- Sumontuota sprinklerinė gaisro gesinimo sistema, įrengtas LED apšvietimas, lauko ir vidaus vaizdo kameros
- Švarus sandėliavimo patalpų lubų aukštis - 8.5 m.
- Grindys - Nedulkančios pramoninio betono
- Pastato energetinė klasė: A++
- Šildymas - oras oras
- Iškaba ant fasado: Yra
- Apdaila: Pilnai įrengtos biuro ir prekybos patalpos (be baldų)
KOMERCINĖS SĄLYGOS
- Siūlomas plotas nuomai: 478 kv.m (su matomumu nuo vakarinio aplinkkelio)
- Patalpos susideda iš: sandėliavimo 302 kv.m, prekybinės 60 kv.m, administracinės IIa. 116 kv.m
- Aukštai: 1-2
- Nuomos kaina: 10 Eur/kv. m.
- Netiesioginiai komunaliniai mokesčiai: Triple NET nuomos sutarties struktūra
- Tiesioginiai komunaliniai mokesčiai: Pagal apskaitos prietaisų parodymus
- Depozitas: 3 nuomos mėnesių dydžio
- Įsikėlimo terminas: 2026, QIII
- Nuomos terminas: 5-10 metų
- Indeksacija: Taikoma
LOKACIJA
Strategiškai puiki vieta prekybinių sandėlių projektui. Projektas vystomas šalia vienos srautingiausių Vilniaus gatvių - Vakarinio aplinkkelio sankirtos su Pavilnionių gatve. Puikus matomumas, lengvas privažiavimas tiek lengvaisiais automobiliais, tiek krovininiu transportu. Visuomeninio transporto stotelė už 200 m. Greta - PC Pašilaičiai, aplinkui kuriasi kitos prekybinės įmonės, vykdoma daugybe gyvenamosios statybos projektų.

