Įsiminti
Sklypas pardavimui, Druskininkų sav., Gailiūnai, Gailiūnų g. id:881055
22 500 €
2 038 €/a
REKLAMA
Įmoka
85 €/mėn
Paskola 19 125 €
Palūkanos 3.40%
Trukmė 30 metų
Įsiminė
0
Parodymai
Šiandien: 4
Viso: 14341
Peržiūros
Šiandien: 2
Viso: 1313
Objekto informacija
Aprašymas
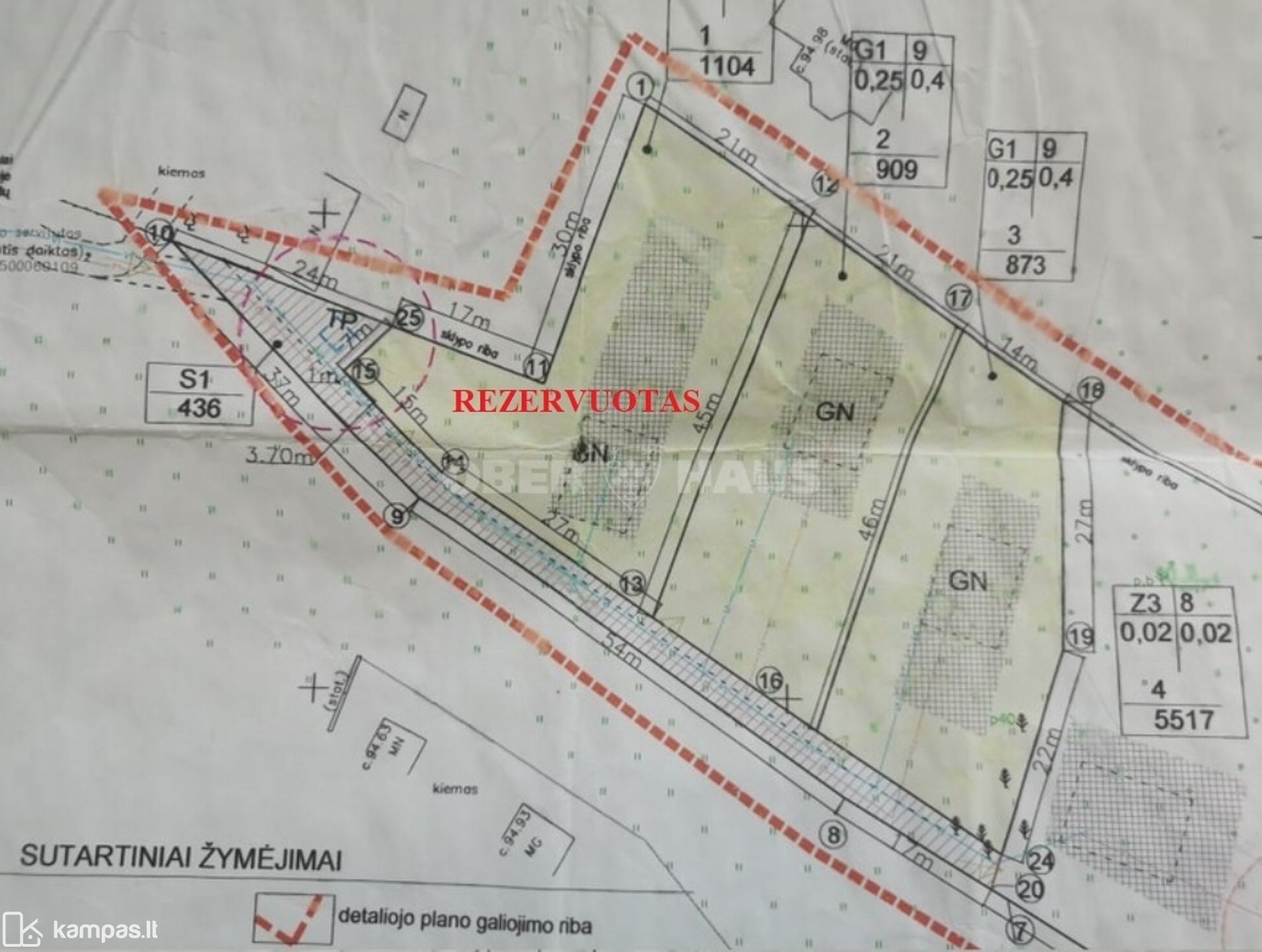
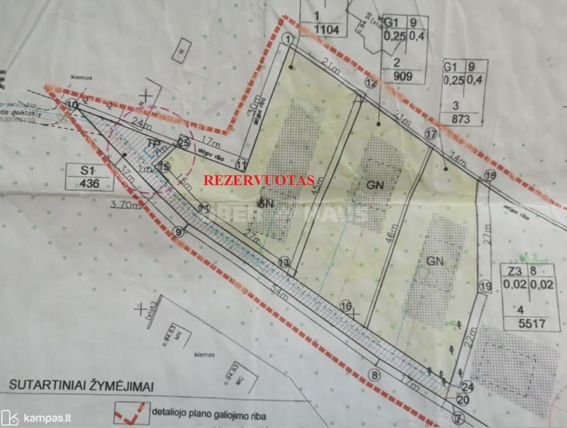
Gailiūnuose, patogioje vietoje šalia Nemuno, parduodamos dvi namų valdos:
11,04a. REZERVUOTA
9,08a. 23500,-Eur.
8,73 a. 26500,-Eur.
Aplinkui susiformavęs naujas individualių namų kvartalas. Patogus privažiavimas, prie pat asfaltuotas kelias ir autobusų stotelė. Greta eina miesto vandentiekio ir nuotekų sistemų šuliniai. Greitu metu numatomi pakrantės valymo ir išmiškinimo darbai. Bus paliktas priėjimas prie Nemuno.
Taip pat parduodamas su Nemunu besiribojantis 55,17 arų sklypas, ūkininko ūkio sodybai įsirengti. Yra visi leidimai vykdyti statybai. 89000eur.
-- Objekto nr. Ober-Haus tinklapyje www.ober-haus.lt/OH406994
Profesionali pagalba parduodant, nuomojant ir įsigyjant nekilnojamąjį turtą:
- Sandoriui reikalingų dokumentų analizė prieš pardavimą;
- Preliminariųjų, rezervavimo sutarčių, priėmimo-perdavimo aktų ir kitų sutarties priedų bei dokumentų parengimas apsaugant jūsų interesus;
- Efektyvi ir itin platų pirkėjų ratą apimanti rinkodara ir marketingo priemonės, pirkėjų srauto monitoringas;
- Jūsų interesų atstovavimas derybose, sutarčių derinime;
- Konsultavimas mokestiniais, juridiniais klausimais.
11,04a. REZERVUOTA
9,08a. 23500,-Eur.
8,73 a. 26500,-Eur.
Aplinkui susiformavęs naujas individualių namų kvartalas. Patogus privažiavimas, prie pat asfaltuotas kelias ir autobusų stotelė. Greta eina miesto vandentiekio ir nuotekų sistemų šuliniai. Greitu metu numatomi pakrantės valymo ir išmiškinimo darbai. Bus paliktas priėjimas prie Nemuno.
Taip pat parduodamas su Nemunu besiribojantis 55,17 arų sklypas, ūkininko ūkio sodybai įsirengti. Yra visi leidimai vykdyti statybai. 89000eur.
-- Objekto nr. Ober-Haus tinklapyje www.ober-haus.lt/OH406994
Profesionali pagalba parduodant, nuomojant ir įsigyjant nekilnojamąjį turtą:
- Sandoriui reikalingų dokumentų analizė prieš pardavimą;
- Preliminariųjų, rezervavimo sutarčių, priėmimo-perdavimo aktų ir kitų sutarties priedų bei dokumentų parengimas apsaugant jūsų interesus;
- Efektyvi ir itin platų pirkėjų ratą apimanti rinkodara ir marketingo priemonės, pirkėjų srauto monitoringas;
- Jūsų interesų atstovavimas derybose, sutarčių derinime;
- Konsultavimas mokestiniais, juridiniais klausimais.
Nuotraukos
